Structural Engineers
At AAASE Consultants Ltd, we are a team of dedicated structural and architectural engineers based in Blackburn. We work closely with clients throughout the North West to deliver safe, sustainable and innovative building projects. From initial concept to final approval, we support every step in the design process.
Our approach is rooted in clear communication and practical solutions. We aim to create attractive, future‑proof residential and commercial buildings that meet regulatory standards and stand the test of time. Collaboration and attention to detail guide our work as we transform client ideas into reality.
Our Services
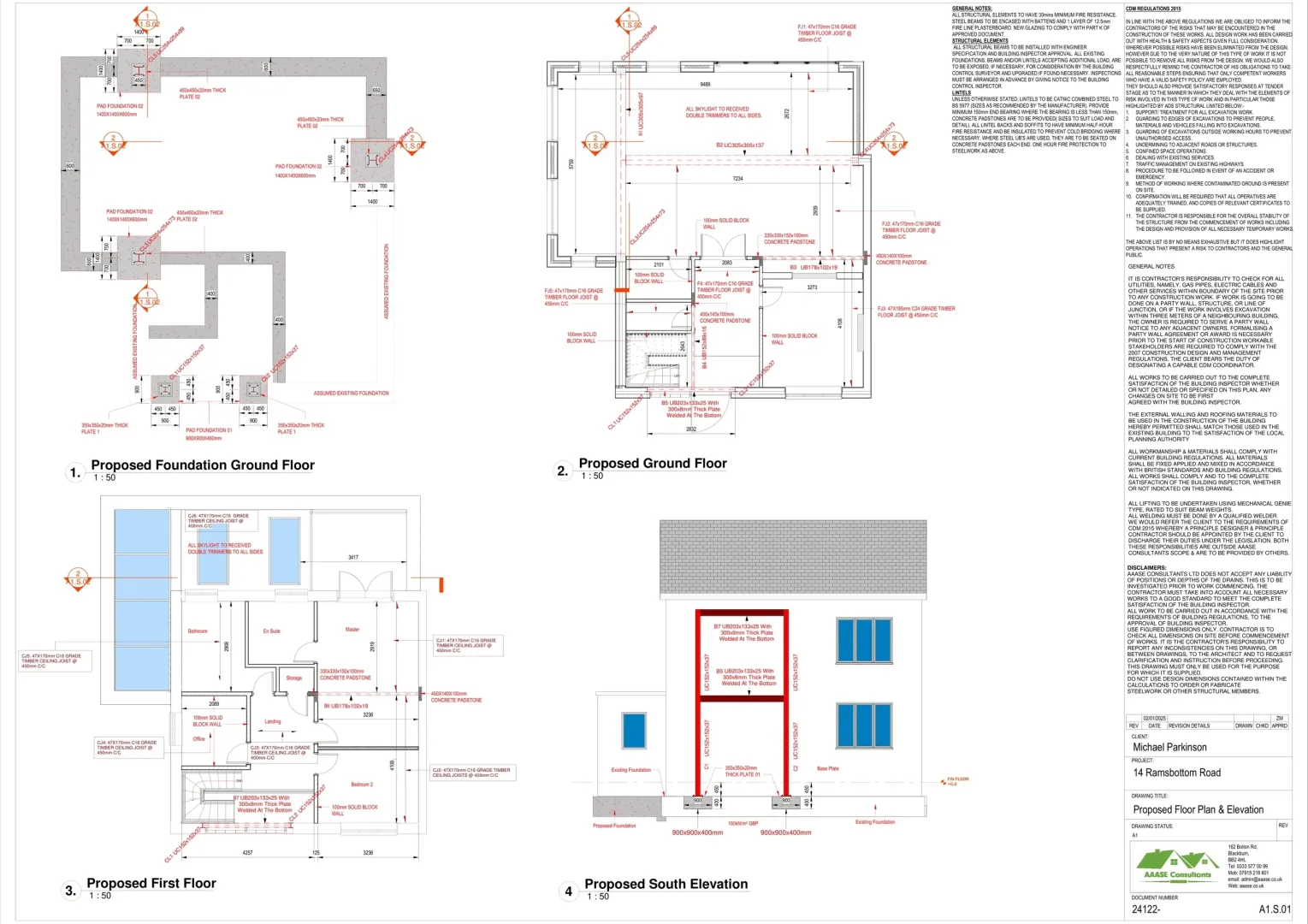
Structural Design and Calculations
Architectural Drawings
Building Regulations Drawings
Planning Application Drawings
Structural Inspections
Site Visits and Surveys
We provide structural design and calculations to ensure that all load‑bearing elements of a building are properly assessed and compliant with current standards. Our architectural drawing service covers everything from detailed floor plans to elevations, giving clients a clear visualisation of their project.
We prepare building regulations drawings to satisfy statutory requirements and coordinate closely with building control bodies. For clients needing planning applications, we compile all necessary drawings and documentation to support a smooth submission process.
Our services integrate seamlessly, enabling us to manage both structural and architectural aspects of a project. By combining technical precision with design clarity, we deliver well‑rounded solutions. Whether you are building a new home, extending an existing structure or developing commercial premises, we guide you through each stage with expertise and care.
Opening Times
| Monday | 09:00 - 17:00 |
| Tuesday | 09:00 - 17:00 |
| Wednesday | 09:00 - 17:00 |
| Thursday | 09:00 - 17:00 |
| Friday | 09:00 - 17:00 |
| Saturday | 10:00 - 12:00 |
| Sunday | Closed |
| - | - |
Customer Reviews
0 Reviews

